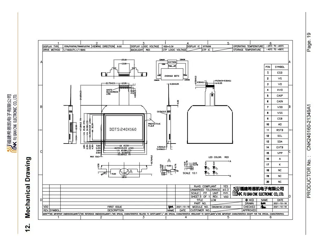
| ARTICOL | Specificații |
| Dimensiunea modulului | 55.58 (W) x47.18 (h) x5.4 (t) mm |
| Zona de vizualizare a afișajului (obiectiv) | 48.59 (W) x33.39 (h) mm |
| Zona de vizualizare afișată (LCD) |
49.58 (W) x34.38 (h) mm |
| Mod de afișare |
FSTN Transflectiv pozitiv |
| Vizualizați IC |
Ora 6 |
| Driver IC |
ST75256 (sau compatibil) |
| Lumina de fundal |
LED/RED |
| Greutate | TBD |


